【開業事例】横浜市
ネイルサロンの開業事例

既存のサロンに追加スペースを設けたパターンです。
テナントの賃料は変わらず席数を増やすことで
賃料の負担率は下がります。
さらに個室感が出ることでお客様にも嬉しいですね。
新店の大事なことは変わらず【最大席数】【求人】【広告の作り方】だと思います。
これから人気サロンになって頂ければと期待しています。開業に関するお問い合わせはこちらまで。

ファン創りのベストパートナー
FANブログページ
ネイルサロンの開業事例

既存のサロンに追加スペースを設けたパターンです。
テナントの賃料は変わらず席数を増やすことで
賃料の負担率は下がります。
さらに個室感が出ることでお客様にも嬉しいですね。
新店の大事なことは変わらず【最大席数】【求人】【広告の作り方】だと思います。
これから人気サロンになって頂ければと期待しています。開業に関するお問い合わせはこちらまで。
ネイルサロンの開業事例


既に内装が出来上がっている物件での出店。
ほとんど内装工事をせずにオープンを迎えました。
出店計画を立てることはもちろん大事なんですが
予算や売上規模、物件の広さも組み入れるのは必須ですね。
新店の大事なことは変わらず【最大席数】【求人】【広告の作り方】だと思います。
これから人気サロンになって頂ければと期待しています。開業に関するお問い合わせはこちらまで。
ネイルサロンの開業事例


東横線沿いの人気エリアでの出店。
駅の周辺は空き物件も少ないのですが運よく見つけられました。
長細い形のテナントでしたがお客様やスタッフの動線を考えて
内装工事を行いました。
新店の大事なことは変わらず【最大席数】【求人】【広告の作り方】だと思います。
これから人気サロンになって頂ければと期待しています。開業に関するお問い合わせはこちらまで。
ネイルサロンの開業事例


名古屋の中心地での出店になります。
広さは十分にありますし需要もあるエリアのため
6席でのオープンとなりました。
スタッフを集めることはオープニングで1番大事なこと。
求人広告はしっかり準備しないといけないですね。
新店の大事なことは変わらず【最大席数】【求人】【広告の作り方】だと思います。
これから人気サロンになって頂ければと期待しています。開業に関するお問い合わせはこちらまで。


居抜きに近いテナントでの出店。
内装費用を抑えられるのはオーナーにとって大きな利点ですね。
3席でスタートとなりましたがキャパは広いので
今後のスタッフ数や売上で席を増やしていけますね。
新店の大事なことは変わらず【最大席数】【求人】【広告の作り方】だと思います。
これから人気サロンになって頂ければと期待しています。開業に関するお問い合わせはこちらまで。
ネイルサロンの開業事例

繁華街から大きな通りを1本挟んだ立地で思ったより賃料は安め。
ティファニーブルーを基調とした店内はお客様にも響きやすいですね。
新店の大事なことは変わらず【最大席数】【求人】【広告の作り方】だと思います。
これから人気サロンになって頂ければと期待しています。開業に関するお問い合わせはこちらまで。
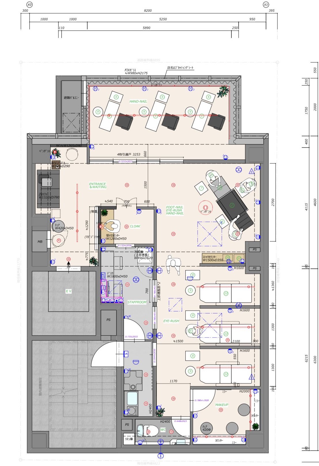
ネイル&アイラッシュサロンの開業事例



元々併設店を作る方向で考えたオーナーでした。
テナントの形がうまくネイルとアイで分けられそうだったのも
物件契約の決め手にもなりました。
繁華街にあるため賃料は相応でしたが、売上は期待できる案件でした。
新店の大事なことは変わらず【最大席数】【求人】【広告の作り方】だと思います。
これから人気サロンになって頂ければと期待しています。開業に関するお問い合わせはこちらまで。
ネイルサロンの開業事例


繁華街・アーケードがあるエリアでの出店です。
十分な広さがありますが、オープニング時のスタッフ数や集客力を考え
4席からスタートとなっています。
求人の集まり具合によって計画を立てるのも大事ですね。
新店の大事なことは変わらず【最大席数】【求人】【広告の作り方】だと思います。
これから人気サロンになって頂ければと期待しています。開業に関するお問い合わせはこちらまで。
ネイルサロンの開業事例。

ネイルだけだと広すぎるくらいの広さ。
フットもできて総席数7のテナントです。
シンプルな内装の場合は什器で色合いを出すと映えますね。
新店の大事なことは変わらず【最大席数】【求人】【広告の作り方】だと思います。
これから人気サロンになって頂ければと期待しています。開業に関するお問い合わせはこちらまで。
ネイルサロン開業事例

本業で利用している物件が広かったためネイルサロンを併設。
限られたスペースではあるものの5席設置。
白を基調とした内装が清潔感と高級感も与えてくれます。
新店の大事なことは変わらず【最大席数】【求人】【広告の作り方】だと思います。
これから人気サロンになって頂ければと期待しています。開業に関するお問い合わせはこちらまで。